16 Hill St, Kapunda

$210,000

Contract Failure = Opportunity A Hidden Gem!!

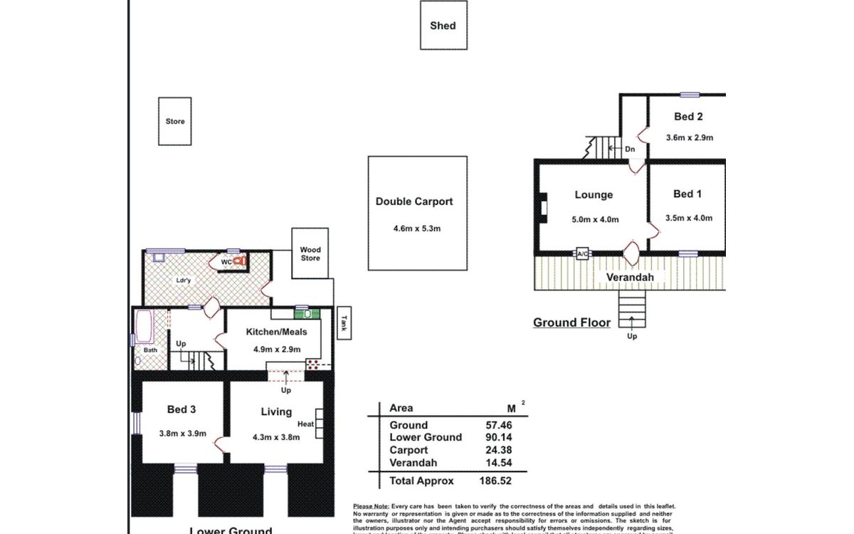
Instant Street appeal here, this Circa Character 1880 double level home on a generous 1062 sq m (approx.) allotment
with a wide 39 m frontage. Subdivision potential (stcc). Nestled in the heart of the town and literally metres from the
Main Street this home offers 2 levels of living with the first being the formal entry from the front balcony leading through
to the attractive lounge with open fireplace and high ceilings. Offering three good sized bedrooms the home is colourfully decorated
throughout and offers the opportunity for you to add your own flair and ideas.
Downstairs is the functional bathroom, kitchen and step down dining area, Air conditioning and a slow combustion heater.
Recently re- roofed along with the addition of a freestanding double carport with ample room for other vehicles.
The front of the property is fenced and gated and approx 39m wide. Plenty of options here. If you are seeking an original
cottage with open fire places and the usual features in a terrific location on a massive block then this is the one for you.
Be quick.. RLA219682


Listed by

agent

Cledwyn Haydn Jones

0423 135 895

[email protected]


3   1     2  

  Download Brochure

Enquiry


Name

Email

Phone

I would like to:






Message




Location Map